Trilocale in vendita

Roma, Via castropignano - Case Rosse
€ 159.000
3 locali 3 locali
80 Mq 80 Mq
1 bagno 1 bagno

Trilocale in vendita

Roma, Via castropignano - Case Rosse

Descrizione annuncio

Nel tranquillo quartiere di Case Rosse, nel comune di Roma e più precisamente Via Castropignano 31, disponiamo di un appartamento in vendita che offre comfort e praticità.

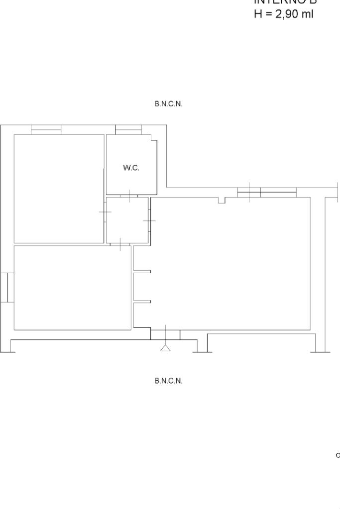
Situato al piano terra, l'immobile sviluppa una superficie di circa 80 mq, ideale per chi cerca un'abitazione funzionale e ben distribuita.

La proprietà comprende due camere da letto, perfette per una famiglia o per chi desidera uno spazio aggiuntivo per ospiti o per un ufficio domestico. Un ulteriore locale versatile può essere utilizzato come soggiorno o sala da pranzo, a seconda delle esigenze.

L'appartamento è dotato di aria condizionata, garantendo un ambiente confortevole durante tutto l'anno.

Costruito nel 1985, in cemento armato e rifinito esternamente in mattoni di cortina, internamente è stato di recente, completamente ristrutturato, così da mantenere un ottimo equilibrio tra modernità e solidità strutturale.

Qualora si necessitasse di uno spazio aggiuntivo, c'è la possibilità di acquistare una comoda cantina adiacente l'appartamento di circa 12 mq ad € 9.000,00

La posizione strategica consente di raggiungere facilmente il Tecnopolo Tiburtino, i principali servizi e collegamenti della città.

SE VOGLIAMO CAMBIARE IL MONDO POSSIAMO PROVARCI INSIEME, SE VOLETE CAMBIARE CASA CI PENSIAMO NOI !

BENVENUTA CASA...

Mostra tutto

Nelle vicinanze

Trasporto pubblico Trasporto pubblico
Ponte di Nona
Ponte di Nona
1,8 Km
Ponte Di Nona
Ponte Di Nona
1,8 Km
Civitacampomarano/Castropignano
Civitacampomarano/Castropignano
70 m
Castropignano/Cercemaggiore
Castropignano/Cercemaggiore
140 m
Ricariche auto elettriche Ricariche auto elettriche
Tecnopolo
870 m
Axpo - Tecnopolo Olivetti
1,4 Km
Scuole Scuole
Scuole
1,1 Km
Eugenio Montale
1,6 Km
Antonio Nuzzo
2,0 Km
Istituto comprensivo statale "Giuseppe Impastato"
2,7 Km
Prampolini
2,8 Km
Farmacia Farmacia
Farmacia Piracci
1,1 Km
Farmacia Settecamini
1,7 Km
Parafarmacia Qualifarma
2,5 Km
Farmacia Palermo
2,5 Km
Farmacia Vitillo
2,8 Km
Supermercati Supermercati
Ufficio 4
1,1 Km
Supermercati
1,2 Km
Lidl
1,5 Km
Carrefour
2,2 Km
Panorama
2,6 Km
Negozi Negozi
Ufficio 1
1,0 Km
CDM confezioni
2,0 Km
Bar Bar
Blue Night Strip Bar
1,0 Km
Bar
1,3 Km
Ristoranti Ristoranti
La griglia
1,0 Km
Pizza Cowboy
1,3 Km
Theo Ristorante Pizzeria
1,3 Km
Il Baffone
1,9 Km
Nabab
1,9 Km
Mostra tutto

Caratteristiche

Rif.:
61146784
Piano:
Terra di 3
Totale piani:
3
Camere da letto:
2
Arredamento:
Assente
Condizionamento:
Autonomo
Mostra tutto
Prezzo Prezzo
€ 159.000
Rata mutuo Rata mutuo
€ 751 / mese
Spese annue Spese annue
€ 600
Proponi il tuo prezzoProponi il tuo prezzo

Classe Energetica

G
G
G
G
G
G
G
G
G
EP globale non rinnovabile:
175.00 kW h/m² anno
EP globale rinnovabile:
175.00 kW h/m² anno
EP invernale del fabbricato:
EP estiva del fabbricato:
Anno di costruzione:
1985
Riscaldamento:
Autonomo
Tipo impianto:
A radiatori
Tipo alimentazione:
Metano

Ti interessa visionare l'immobile?

Fissa un appuntamento  Fissa un appuntamento

Richiedi informazioni

Clicca su Leggi per aprire l'informativa
* Questi campi sono obbligatori

Calcola il tuo mutuo

Semplice e senza impegno
Anticipo

( % )
Mutuo

( % )

pochi semplici passi

inserisci i tuoi dati
Questionario completato
Grazie per aver richiesto un appuntamento senza impegno con un nostro Consulente del Credito e Assicurativo.

Hai inserito correttamente tutti i dati necessari e a breve riceverai una e-mail con un link da convalidare per inviare i tuoi dati.
Affiliato
Immobiliare Setteville Srl
P.zza Trilussa, 3 00012 Guidonia Montecelio (RM)

Il nostro staff


  • Gabriele Casetta
    Affiliato

  • Anthony Garofalo
    Responsabile

  • Daniele Petrosino
    Collaboratore

  • Ylenia Scaramuzza
    Coordinatrice
P.zza Trilussa, 3 00012 Guidonia Montecelio (RM)
Zona: Setteville-Case Rosse-Collina del Sole
Mostra su mappa
Orari: dal lunedì al venerdì dalle 09:00 alle 13:00 e dalle 15:30 alle 20:00. Sabato fino alle 19:00.
Affiliato
Immobiliare Setteville Srl
P.zza Trilussa, 3 00012 Guidonia Montecelio (RM)

2025 Tecnocasa Franchising S.p.A. - P. IVA 08365160152 - Via Monte Bianco 60/A 20089 Rozzano (MI). Ogni agenzia ha un proprio titolare ed è autonoma. Privacy policy | Policy utilizzo | Cookie policy